Adaugă anunț

Toate anunțurile în Ciacova

Preț
Data publicării
Suprafata utila
Camere
Etaj
Solicitări populare
Găsit: 16 anunțuri în Ciacova
Apartament Ciacova timiș

Apartament Ciacova timiș

olx.ro Apartamente - Garsoniere de vânzare Ciacova 19 zile
Schimb apartament din Ciacova Jud Timiș , zona buna fix in centru! Zona liniștită. Cu o casă in județul Timiș Apartamentul dispune de 3 camere O baie Și o Bucătărie care este jos la etaj! Pentru mai multe detalii astept mesaj in privat !07******59
Apartament Apartament doua camere

Apartament Apartament doua camere

€ 26.000,00
olx.ro Apartamente - Garsoniere de vânzare Ciacova 30+ zile
Camere 2
Etaj Parter
Apartament cu doua camere, bucătărie, baie ,anexe și curte și coridor situat în centrul Ciacovei, strada piața cetății nr 46 apartamentul 1 . Prețul este de 26000 euro negociabil . Pentru mai multe detalii apelați la numărul de telefon 07******23
Casa renovata | Teren 800 | 3 camere

Casa renovata | Teren 800 | 3 camere

imobiliare.ro Case - Vile de vânzare Ciacova 30+ zile
Camere 3
An constructie 1970
Suprafata utila 85 m²
ImoWest Imobiliare ofera spre vanzare direct de la proprietar o casa situata in Sat. Ciacova, Judetul Timis, strada Victoriei.Detalii relevanteSuprafata utila casa: 85.40 mp Suprafata construita 115 mp Suprafata teren 800 mp GarajUtilitati: apa, curent , canalizareIncalzirea se realizeaza cu ajutorul teracotelor pe lemneRenovata, gresie, faianta, parchet Mobilata Formata din 3 camere, bucatarie baie si debara.
Casa 4 Camere | Ciacova | 0% Comision

Casa 4 Camere | Ciacova | 0% Comision

imobiliare.ro Case - Vile de vânzare Ciacova 30+ zile
Camere 4
An constructie 1980
Suprafata utila 113 m²
Descoperiti aceasta casa deosebita, renovata recent, situata in inima Ciacovei! Cu 4 camere spatioase, fiecare avand o inaltime impresionanta de 3 metri, locuinta ofera un aer primitor. Construita solid din caramida, casa dispune de geamuri termopan cu rulouri, asigurand atat izolatie cat si intimitate. Bucurati-va de confortul unei centrale proprii pe lemne, perfecta pentru iernile reci. Localizata aproape de centrul comunei, aceasta casa este ideala pentru cei care cauta liniste, dar si acces rapid la facilitati !Locatia: Loc. Ciacova, Str. Avram Iancu (Centru)- Şcoli si gradinite in apropiere- Magazine, supermarketuri si piete locale- Transport public Caracteristici cheie : - Suprafata teren: 393,00 mp - Suprafata utila: 140,00 mp - 4 camere spatioase si luminoase - 1 Baie - Bucatarie - Incalzire centralizata pe lemne - Geamuri termopan - Izolatie cu Polistiren pe ExteriorFacilitati suplimentare: - Gradina frumos amenajata, perfecta pentru relaxare - Garaj pentru un automobilDetalii achizitie:- Pret: 79.000 euro negociabil.- Se ofera consultanta financiar-bancara gratuita in vederea contractarii oricarui tip de credit.- Comision 0% - se tranzactioneaza direct.- Costuri notariale aproximativ 7.700 ron Contactati-ne pentru a programa o vizionare si pentru a descoperi mai multe despre aceasta proprietate unica.
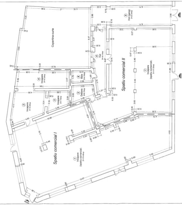
Inchiriez spatiu comercial  ultracentral cu acces de pe 3 strazi

Inchiriez spatiu comercial ultracentral cu acces de pe 3 strazi

€ 1.500,00
olx.ro Spații comerciale - Birouri Ciacova 30+ zile
Suprafata utila 540 m²
pret m² 2,78 €
Inchiriez spatiu comercial ultracentral cu acces de pe 3 strazi
Inchiriez/vand spatiu compercial ultracentral 400-550 mp

Inchiriez/vand spatiu compercial ultracentral 400-550 mp

€ 3,00
olx.ro Spații comerciale - Birouri Ciacova 30+ zile
Suprafata utila 400 m²
pret m² 0,01 €
Vand/inchiriez spatiu comercial ultracentral, situat in piata, cu acces de pe 3 strazi.
Spatii comerciale

Spatii comerciale

€ 300,00
olx.ro Spații comerciale - Birouri Ciacova 30+ zile
Suprafata utila 30 m²
pret m² 10,00 €
Spatii comerciale ultracentrale cu suprafete cuprinse intre 20-300 mp, acces direct din strada.
Vând apartament în centru

Vând apartament în centru

€ 36.000,00
olx.ro Apartamente - Garsoniere de vânzare Ciacova 30+ zile
Suprafata utila 80 m²
An constructie 1977 – 1990
Etaj 1
pret m² 450,00 €
Vând apartament în centru cu 3 Camere ,1Baie ,1Bucatarie mai multe detalii la nr de telefon ILIE 07******45
Casă de vacanță Valiug

Casă de vacanță Valiug

€ 155.000,00
olx.ro Case - Vile de vânzare Ciacova 30+ zile
Camere 4 sau mai multe
Suprafata utila 198 m²
pret m² 782,83 €
Preț mediu 4 sau mai multe cam. Ciacova: 782,83 €/m²
Oportunități:-relaxare, caiac, canoe, divertisment (Ponton Casa Baraj)-ski, snowboarding, treking, Muntele SemenicTip încălzirecentrală electrică, sobăSuprafață teren (m²)711 m²Staregata de utilizareTip clădirerezidentialaAnul construcției2000Material de construcțiecărămidă, piatra de munte Tip geamurilemnNumar de etajeun nivelTip acoperisoblicAcoperismetalicTip mansardăutilizabilăMediaelectricitate, apă curentăSiguranțăcurteTip gardmetalTip accesasfaltatLocațiefără informațiiImprejurimipadure, lac, munte.
Propietar vand cabana la Lacul Surduc

Propietar vand cabana la Lacul Surduc

€ 49.500,00
olx.ro Case - Vile de vânzare Ciacova 30+ zile
Camere 3 camere
pret m² 782,83 €
Preț mediu 3 camere cam. Ciacova: 250,00 €/m²
Propieter vand Cabana (cu Carte Funciara) la Lacul Surduc, complet renovata, totul nou, curent trifazic, internet, tv, aer conditionat, sistem de incalzire automatizat pe peleti, apa retea, canal, asfalt, aproape de lac, zona linistita si priveliste pitoreasca (vezi a doua poza facuta din cabana).Mai multe detalii la tel 07******00
Hale Ciacova Depozitare

Hale Ciacova Depozitare

€ 1.000,00
olx.ro Depozite si Hale de închiriat Ciacova 30+ zile
pret m² 782,83 €
Preț mediu 3 camere cam. Ciacova: 250,00 €/m²
2 Hale fiecare aprox 300m2Depozitare:Produse,Utilaje,Masini,AfaceriService
Moara de grâu, Ciacova

Moara de grâu, Ciacova

€ 200.000,00
olx.ro Depozite si Hale de vânzare Ciacova 30+ zile
pret m² 782,83 €
Preț mediu 3 camere cam. Ciacova: 250,00 €/m²
Moara de grâu, Ciacova4 silozuri -70 mc fiecare2 hale aprox 300m2Cladire anexaCladire anexa-ISU
Moara de grau, Ciacova +2Hale

Moara de grau, Ciacova +2Hale

€ 200.000,00
imobiliare.ro Spații comerciale - Birouri Ciacova 30+ zile
Suprafata utila 2.440 m²
pret m² 81.967,21 €
Preț mediu 3 camere cam. Ciacova: 20.286,89 €/m²
Casa | Ciacova | 0% Comision

Casa | Ciacova | 0% Comision

imobiliare.ro Case - Vile de vânzare Ciacova 30+ zile
Suprafata utila 140 m²
Situata in inima orasului Ciacova, aceasta casa batraneasca va invita sa descoperiti farmecul si istoria sa. Proprietatea este amplasata convenabil chiar langa asfalt. Casa dispune de patru camere spatioase, pline de caracter si potential pentru personalizare, o bucatarie, o camara plus o baie complet functionala. Gradina incantatoare ofera un spatiu perfect pentru relaxare si activitati in aer liber. Un garaj atasat completeaza aceasta oferta, oferind spatiu suficient pentru parcare si depozitare. Aceasta proprietate reprezinta o oportunitate exceptionala pentru cei care cauta sa investeasca intr-un imobil cu adevarat special.Detalii generale:- Locatia: Ciacova, str. Alexandru Ioan Cuza- Utilitati: Apa, Curent- Regim inaltime: Parter- Anul constructiei: 1970Caracteristici principale :- Numarul de camere şi bai: 4 Camere | 1 Baie- Suprafete: 144 mp Utili - Complet mobilata si utilata Detalii achizitie:- Pret: 73.000 euro negociabil.- Comision 0% - se tranzactioneaza direct.- Costuri notariale aproximativ 5.500 ron
Vând casă cu 2 apartamente

Vând casă cu 2 apartamente

€ 180.000,00
olx.ro Case - Vile de vânzare Ciacova 30+ zile
Vând casă la Ciacova, județ Timiș. Deține două apartamente plus un spațiu de producție (eu îl foloseam pentru producția de pavaje), depozitare și grădină de legume. Deține de asemenea o pivniță foarte spațioasă. Prețul este de 180.000 de euro, ușor negociabil. Se vinde mobilată, cu sau fără utilajele din poze. Instalația electrică este de 220, plus 380 de volți.
Vand teren pentru casa in Ciacova, Timis

Vand teren pentru casa in Ciacova, Timis

€ 10.000,00
olx.ro Terenuri Ciacova 30+ zile
Vand teren pentru casa in Ciacova, in Zona Targului, la asfalt!! suprafata 550 mp; toate utilitatile trase in fata parcelei!! Am disponibile 3 parcele la alegere!!
Categorii principale în Ciacova